Italiano
English
250.000 €

ROMENTINO - NUOVA COSTRUZIONE

4 o più locali in vendita • Romentino - Via Trecate
A Romentino, in zona tranquilla e residenziale, nasce il nuovo Residence “I Cipressi”: esclusivo complesso composto da sole 2 ville quadrifamiliari con appartamenti in villa di 4 locali e doppi servizi, pensati per chi cerca indipendenza, comfort e alta efficienza energetica.

Situato in posizione strategica, Romentino offre tutti i principali servizi: scuole, asili, supermercati, farmacia, aree verdi e collegamenti comodi. A pochi minuti da Novara, è la soluzione ideale per chi desidera vivere in un contesto più riservato senza rinunciare alla vicinanza alla città e alle principali vie di comunicazione.

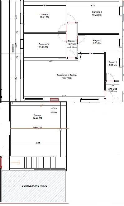
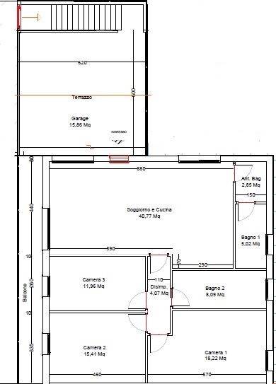
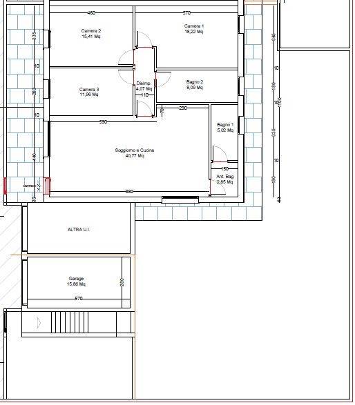
Disponibili due tipologie abitative, entrambe di 120 mq:

Piano terra
Ampia e luminosa zona giorno di 42 mq con soggiorno e cucina a vista (eventualmente separabile), disimpegno, bagno con lavanderia, bagno padronale e 3 camere spaziose. Completa la proprietà uno splendido giardino privato di circa 200 mq su due lati, perfetto per famiglia e momenti all’aperto.

Primo piano
Stessa distribuzione interna, ma con accesso indipendente, terrazzo di 38 mq ideale per pranzi e relax all’aperto, oltre a giardino/spazio polifunzionale privato di circa 25 mq al piano terra.

Il complesso sarà realizzato in classe energetica A4, con finiture di alto livello, riscaldamento a pavimento con pompa di calore, impianto fotovoltaico e tapparelle elettriche: massimo comfort abitativo e consumi ridotti.

Consegna prevista fine 2027. Possibilità di prenotazione per personalizzare gli spazi e le finiture secondo le proprie esigenze.

Prezzi a partire da € 250.000,00
Box a partire da € 15.000,00

Gatti Real Estate: ogni giorno al tuo fianco per garantirti un servizio di eccellenza.
Scegliendoci, potrai contare su professionisti qualificati, strategie personalizzate e un’assistenza attenta e completa in ogni fase del tuo percorso immobiliare.
Se prima di acquistare devi vendere il tuo immobile, richiedi subito una valutazione professionale: ti aiuteremo a individuare il reale valore della tua proprietà e a definire le migliori strategie per valorizzarla e posizionarla correttamente sul mercato.

“Gatti Real Estate, la diretta soluzione ai vostri desideri e la promessa delle nostre limpide certezze”

Il testo e il materiale fotografico hanno valore puramente indicativo e non costituiscono elemento contrattuale.

Caratteristiche principali
Codice
V000320
Città
Romentino
Categoria
4 o più locali
Prezzo
250.000 €
Locali
4
Camere
3
Bagni
2
Mq
121
Box
1
Mq Box
16
Mq Giardino
200
Terrazzi
1
Piano
Terra
Classe energetica
A4
3,51 kWh/m²a
Stato Immobile
Prossima Realizzazione
Grado
Signorile
Panorama
Vista Giardino
Orientamento
Nord Ovest Sud Est
Lati Liberi
3
Giardino
Privato
Arredi
Non Arredato
Tipo Soggiorno
Soggiorno
Tipo Cucina
A Vista
Riscaldamento
Autonomo
Tipo Riscaldam.
Pompa di Calore
Tipo Impianto
Pavimento
Fonte Energetica
Fotovoltaico
Acqua Calda
Autonoma
Raffrescamento
Split
Infissi
PVC Doppio Vetro
Serramenti
Nuovo
Persiana
Tapparella PVC
Pavim. Giorno
Gres Porcellanato
Pavim. Notte
Gres Porcellanato
Pavim. Cucina
Gres Porcellanato
Pavim. Bagno
Gres Porcellanato
Accesso Disabili
Nessuna Barriera
Accesso interno disabili
Pieno accesso

Accessori: Cancello Elettrico, Doppi Vetri, Impianto Fotovoltaico, Lavanderia, Pannelli Solari, Passaggio Automobilistico, Passaggio Pedonale, Porta Blindata, Tapparelle Elettriche, Video Citofono, Zanzariere

Distanze
Posizione
Centro500 m
Istruzione
Scuola materna700 m
Scuola elementare250 m
Scuola media900 m
Scuola superiore1,4 km
Altri servizi
Banca500 m
Chiesa500 m
Farmacia550 m
Mappa
Via Trecate , Romentino (NO)
Video
Condividi su
Cookie preference