Italiano
English
238.000 €

CAMERI

Villa in vendita • Cameri - Via Martiri Partigiani
VILLA DI TESTA – FIRMA D’AUTORE DI VITTORIO GREGOTTI
Un gioiello architettonico unico nel suo genere, nato dalla mente e dalla mano del celebre architetto Vittorio Gregotti, che negli anni ’50 ha contribuito a definire lo stile moderno italiano.
Questa villa, edificata nel 1956, conserva tutto il fascino dell’epoca, armoniosamente integrato con il comfort contemporaneo grazie alla completa ristrutturazione interna del 2016.

DISPOSIZIONE
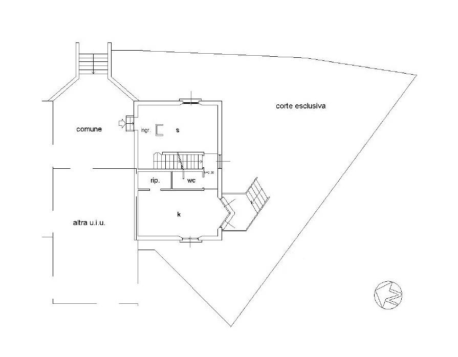
La proprietà, libera su tre lati, si sviluppa su due livelli:
- Piano rialzato: luminoso soggiorno, cucina abitabile e bagno di servizio.
- Primo piano: zona notte elegante e silenziosa, composta da due camere matrimoniali e due bagni, entrambi rifiniti con materiali di qualità.

SPAZI ESTERNI E ACCESSORI
A circondare la villa, un giardino privato di circa 200 mq, perfetto per momenti di relax e convivialità.
Completano la proprietà una cantina, un box auto e due posti auto di proprietà.
Ingresso indipendente e totale assenza di spese comuni: un valore aggiunto raro e prezioso.

PERCHÉ SCEGLIERLA
Pronta per essere abitata, ben tenuta e caratterizzata da rifiniture di ottimo livello, questa residenza rappresenta un’opportunità unica per chi cerca una casa di pregio storico, curata in ogni dettaglio e firmata da uno dei maestri dell’architettura italiana.

Ti aspettiamo per visionarla insieme. Non lasciarti sfuggire questa occasione irripetibile!

Gatti Real Estate: ogni giorno al tuo fianco per garantirti un servizio di eccellenza.
Scegliendoci, potrai contare su professionisti qualificati, strategie personalizzate e un’assistenza attenta e completa in ogni fase del tuo percorso immobiliare.
Se prima di acquistare devi vendere il tuo immobile, richiedi subito una valutazione professionale: ti aiuteremo a individuare il reale valore della tua proprietà e a definire le migliori strategie per valorizzarla e posizionarla correttamente sul mercato.

“Gatti Real Estate, la diretta soluzione ai vostri desideri e la promessa delle nostre limpide certezze”

Il testo e il materiale fotografico hanno valore puramente indicativo e non costituiscono elemento contrattuale.


Caratteristiche principali
Codice
V000312
Città
Cameri
Categoria
Villa
Prezzo
238.000 €
Locali
3
Camere
2
Bagni
3
Mq
154
Box
1
Mq Box
15
Posti auto
2
Mq Giardino
200
Piano
Rialzato
Classe energetica
In fase di valutazione
Stato Immobile
Ottimo
Grado
Signorile
Posizione
Periferia
Panorama
Vista Giardino
Orientamento
Est Sud Ovest
Lati Liberi
3
Giardino
Privato
Tipo Soggiorno
Soggiorno
Tipo Cucina
Abitabile
Riscaldamento
Autonomo
Tipo Riscaldam.
Caldaia a Condensazione
Tipo Impianto
Radiatori
Fonte Energetica
Metano
Acqua Calda
Autonoma
Raffrescamento
Split
Infissi
PVC Doppio Vetro
Serramenti
Ottimo
Persiana
Tapparella PVC
Pavim. Giorno
Gres Porcellanato
Pavim. Notte
Gres Porcellanato
Pavim. Cucina
Gres Porcellanato
Pavim. Bagno
Gres Porcellanato
Accesso Disabili
No

Accessori: Aria Condizionata, Camino, Doppi Vetri, Passaggio Pedonale, Porta Blindata

Distanze
Posizione
Centro800 m
Istruzione
Scuola materna950 m
Scuola elementare800 m
Scuola media1,4 km
Mezzi di trasporto
Fermata metro-bus-tram500 m
Altri servizi
Banca800 m
Chiesa800 m
Farmacia900 m
Supermercato140 m
Mappa
Via Martiri Partigiani , Cameri (NO)
Video
Condividi su
Cookie preference