Italiano
English
150.000 €

NOVARA - SAN MARTINO

Negozio in vendita • Novara (San Martino) - Via Pajetta, 1/A
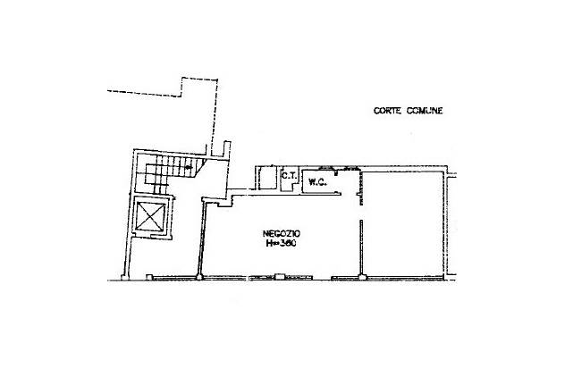
In zona San Martino, quartiere molto ricercato e caratterizzato da forte passaggio sia pedonale che veicolare, proponiamo in vendita un locale commerciale di circa 60 mq, in ottime condizioni e già a reddito.
L’immobile si compone di quattro vetrine fronte strada che garantiscono un’elevata visibilità, due ambienti interni ben distribuiti e un box ad uso magazzino.
Attualmente è locato ed utilizzato come ferramenta, con regolare contratto commerciale 6+6 già in essere, che assicura una rendita costante e sicura.
Questa proposta rappresenta un’opportunità interessante per chi desidera un investimento solido in una zona servita, densamente abitata e con un flusso continuo di potenziali clienti.
Un’occasione ideale per chi cerca un immobile a reddito con redditività immediata.
Per ulteriori informazioni e per fissare una visita, contattaci senza impegno.

Gatti Real Estate: ogni giorno al tuo fianco per garantirti un servizio di eccellenza.
Scegliendoci, potrai contare su professionisti qualificati, strategie personalizzate e un’assistenza attenta e completa in ogni fase del tuo percorso immobiliare.
Se prima di acquistare devi vendere il tuo immobile, richiedi subito una valutazione professionale: ti aiuteremo a individuare il reale valore della tua proprietà e a definire le migliori strategie per valorizzarla e posizionarla correttamente sul mercato.

“Gatti Real Estate, la diretta soluzione ai vostri desideri e la promessa delle nostre limpide certezze”

Il testo e il materiale fotografico hanno valore puramente indicativo e non costituiscono elemento contrattuale.


Caratteristiche principali
Codice
V000303
Città
Novara (San Martino)
Categoria
Negozio
Prezzo
150.000 €
Spese condominiali
1.000 € / anno
Locali
2
Bagni
1
Mq
60
Box
1
Mq Box
18
Piano
Terra
Classe energetica
C
717,19 kWh/m²a
Stato Immobile
Ottimo
Grado
Signorile
Posizione
Centro
Lati Liberi
2
Arredi
Non Arredato
Riscaldamento
Autonomo
Tipo Riscaldam.
Caldaia
Tipo Impianto
Radiatori
Fonte Energetica
Metano
Acqua Calda
Autonoma
Raffrescamento
Split
Infissi
Alluminio Doppio Vetro
Serramenti
Ottimo
Numero Vetrine
Quattro
Accesso Disabili
Nessuna Barriera

Accessori: Antifurto, Aria Condizionata, Doppi Vetri

Mappa
Via Pajetta 1/A, Novara (NO)
Video
Condividi su
Cookie preference